GZS慣性振動輸送機
概述
GZS型慣性振動(dong)輸送機起(qi)動(dong)快,在滿載情況下均能正常起(qi)動(dong),用于(yu)各種粒狀、中等塊度以(yi)下的非粘性物料(含水量小于(yu)5%),結構簡單,安裝方便(bian)。
特點
1、電機振動輸送機輸送量大、重量輕、電耗低。
2、負載特性好,機槽振幅受電壓波動對輸送量的影響很小。
3、結構簡單,調試容易,磨損件少,維修量少。
4、不需專用地基和地腳螺栓,便于移動位置。
5、隔震性能好。
6、停車快,停車時整機穩定。

參數
GZS型慣性振動輸送機主要技術參數:
| 參數 型號 |
輸送量(t/h) | 額定振幅(mm) | 電機功率(kw) | 電機轉速(rpm) | 設備重量(kg) |
| GZS400-4.7 | ≤50 | 5 | 1.5 | 1410 | ~1400 |
| GZS400-5.7 | ≤50 | 5 | 1.5 | 1410 | ~1550 |
| GZS400-6.7 | ≤50 | 5 | 1.5 | 1410 | ~1950 |
| GZS400-7.7 | ≤50 | 5 | 1.5 | 1410 | ~2100 |
| GZS650-4.7 | ≤100 | 5 | 2.2 | 1430 | ~2650 |
| GZS650-5.7 | ≤100 | 5 | 2.2 | 1430 | ~2800 |
| GZS650-6.7 | ≤100 | 5 | 3.0 | 1430 | ~3200 |
| GZS650-7.7 | ≤100 | 5 | 3.0 | 1430 | ~3500 |
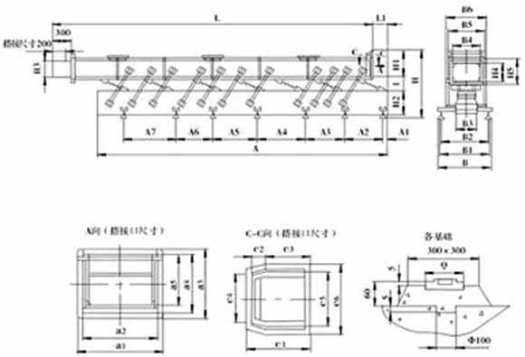
外形尺寸及基礎(chu)尺寸:
| 型號 | H | H1 | H2 | H3 | H4 | H5 | B | B1 | B2 | B3 | B4 | B5 | B6 |
| GZS400-4.7-7.7 | ~1350 | 429 | 490 | 240 | 232 | 360 | 840 | 780 | 640 | 500 | 400 | 538 | 670 |
| GZS650-4.7-7.7 | ~1500 | 477 | 540 | 280 | 270 | 380 | 1140 | 1000 | 840 | 660 | 650 | 830 | 1010 |
| 型號 | a1 | a2 | a3 | a4 | a5 | C1 | C3 | C3 | C4 | C5 | C6 | C7 |
| GZS400-4.7-7.7 | 538 | 448 | 469 | 380 | 320 | 342 | 98 | 200 | 398 | 448 | 530 | 200 |
| GZS650-4.7-7.7 | 830 | 718 | 527 | 422 | 362 | 347 | 98 | 200 | 648 | 718 | 830 | 250 |
| 型號 | L | L1 | I | A | A1 | A2 | A3 | A4 | A5 | A6 | A7 |
| GZS400-4.7 | 4700 | 401 | 310 | 4000 | 180 | 930 | 1300 | 660 | 660 | - | - |
| GZS400-5.7 | 5700 | 370 | 310 | 5000 | 400 | 570 | 570 | 1830 | 725 | 725 | - |
| GZS400-6.7 | 6700 | 340 | 310 | 6000 | 200 | 645 | 645 | 1385 | 820 | 820 | 820 |
| GZS400-7.7 | 7700 | 370 | 310 | 7000 | 180 | 965 | 965 | 1180 | 1045 | 1045 | 1045 |
| GZS650-4.7 | 4700 | 337 | 312 | 4000 | 180 | 410 | 410 | 1264 | 635 | 635 | - |
| GZS650-5.7 | 5700 | 390 | 312 | 5000 | 180 | 570 | 570 | 1730 | 780 | 780 | - |
| GZS650-6.7 | 6700 | 348 | 312 | 6000 | 180 | 625 | 625 | 1410 | 1040 | 880 | 880 |
| GZS650-7.7 | 7700 | 365 | 312 | 7000 | 180 | 830 | 830 | 1490 | 1120 | 1120 | 1120 |
用途
GZS型慣性振動輸送機適宜水泥熟料及礦渣庫頂輸送,最適宜輸送高磨耗、高溫度(300℃以下)物料。如水泥熟料、烘干熱礦炸、砂等。
相關產品
-
DZS電機振動輸送機
DZS型電機(ji)振動(dong)輸(shu)送機(ji)、輸(shu)送槽為(wei)(wei)U形槽和管形兩種(zhong)。槽底(di)可改為(wei)(wei)傾斜(xie)式(shi)(shi),槽可加蓋(gai),可制(zhi)成一點(dian)進料(liao)(liao)多點(dian)排料(liao)(liao),成多點(dian)進料(liao)(liao)一點(dian)排料(liao)(liao)一點(dian)排料(liao)(liao),排料(liao)(liao)口(kou)可為(wei)(wei)直式(shi)(shi)、側斜(xie)式(shi)(shi)或下彎式(shi)(shi),排料(liao)(liao)口(kou)可設置(zhi)形式(shi)(shi)閘門。
立即了解?DZS電機振動輸送機
-
SZF型慣性振動熱料輸送機
SZF型慣性振動熱料輸(shu)送機適用于輸(shu)送各種中等(deng)塊度以下的(de)散粒狀物料及(ji)水平(ping)輸(shu)送(<5000c)高溫高磨耗物料,是一種兼有鎖風功(gong)能的(de)長距(ju)離(li)輸(shu)送設備(bei)。
立即了解?SZF型慣性振動熱料輸送機
-
PBS型振動加料系統
PBS型(xing)振(zhen)動加料(liao)系統是我公司為(wei)鑄造爐前輸送鐵合(he)金加料(liao)設(she)備而設(she)計(ji)的,該(gai)機型(xing)可實(shi)現行(xing)走和(he)給料(liao)雙功能,同(tong)時可根據用(yong)戶要(yao)求實(shi)現各種工(gong)藝布置。
立即了解?PBS型振動加料系統
-
電機振動輸送機
電機振動輸(shu)送機的輸(shu)送槽(cao)為U形(xing)槽(cao)和(he)管形(xing)兩種,槽(cao)底可(ke)改為傾斜式,槽(cao)可(ke)加蓋,可(ke)制成(cheng)一點(dian)(dian)(dian)進料多點(dian)(dian)(dian)排(pai)(pai)(pai)料,成(cheng)多點(dian)(dian)(dian)進料一點(dian)(dian)(dian)排(pai)(pai)(pai)料一點(dian)(dian)(dian)排(pai)(pai)(pai)料,排(pai)(pai)(pai)料口可(ke)為直式、側斜式或(huo)下(xia)彎式,排(pai)(pai)(pai)料口可(ke)設置形(xing)式閘門。
立即了解?電機振動輸送機
動態
-
18
2025-04
慣性振動輸送機的結構優勢,了解嗎
慣(guan)性振(zhen)(zhen)動(dong)(dong)(dong)輸(shu)(shu)送(song)(song)機(ji)是利用機(ji)械共(gong)振(zhen)(zhen)原理來(lai)輸(shu)(shu)送(song)(song)物料(liao)的,其通(tong)過(guo)激(ji)振(zhen)(zhen)器產(chan)生(sheng)振(zhen)(zhen)動(dong)(dong)(dong),使(shi)料(liao)槽及(ji)其中的物料(liao)產(chan)生(sheng)連續(xu)的微小(xiao)拋擲或滑(hua)動(dong)(dong)(dong),從(cong)而(er)實現物料(liao)的向前輸(shu)(shu)送(song)(song)。該(gai)振(zhen)(zhen)動(dong)(dong)(dong)輸(shu)(shu)送(song)(song)機(ji)起(qi)動(dong)(dong)(dong)、停車快且平(ping)穩(wen),其輸(shu)(shu)送(song)(song)距離(li)長,輸(shu)(shu)送(song)(song)量(liang)大,能耗低,噪音小(xiao)、磨損小(xiao),維修(xiu)工作量(liang)小(xiao)。
-
20
2021-08
關于電機振動輸送機,這些知識點了解嗎
電機(ji)(ji)振動輸送機(ji)(ji)適(shi)用于(yu)把塊狀(zhuang)、顆(ke)粒(li)狀(zhuang)及粉狀(zhuang)物料(liao)(liao)從(cong)貯料(liao)(liao)倉或(huo)漏斗中均勻(yun)連續(xu)地給到(dao)(dao)受料(liao)(liao)裝(zhuang)置中去。電機(ji)(ji)振動輸送機(ji)(ji)利用料(liao)(liao)槽的(de)振動使料(liao)(liao)槽中的(de)物料(liao)(liao)從(cong)入料(liao)(liao)口(kou)快速輸送到(dao)(dao)出料(liao)(liao)口(kou),可以用來輸送塊狀(zhuang)、顆(ke)粒(li)狀(zhuang)或(huo)粉狀(zhuang)、常溫(wen)或(huo)高溫(wen)的(de)各種物料(liao)(liao)。
-
21
2021-01
慣性振動輸送機出現故障的原因及解決方法
慣性(xing)振動輸送(song)(song)機是一種無牽引構(gou)件的連(lian)續輸送(song)(song)機械(xie),主(zhu)要由承(cheng)載(zai)構(gou)件、彈(dan)性(xing)元件及激振器等組成。該振動輸送(song)(song)機起(qi)動、停車快且平穩,其輸送(song)(song)距離長,輸送(song)(song)量大,能耗低,噪(zao)音(yin)小(xiao)、磨損小(xiao),維修(xiu)工(gong)作量小(xiao)。
-
18
2018-09
慣性振動輸送機的使用要點講解
慣性振(zhen)動(dong)(dong)輸送(song)機料槽使用橡膠彈(dan)簧或(huo)鋼簧支(zhi)承,依靠固(gu)定在料槽上的兩(liang)臺振(zhen)動(dong)(dong)電機的自同步運轉,使料槽產生(sheng)直線(xian)振(zhen)動(dong)(dong)。慣性振(zhen)動(dong)(dong)輸送(song)機可制成上振(zhen)式、下振(zhen)式和(he)側振(zhen)式三種(zhong)形式。
-
26
2018-06
談談電機振動輸送機的安裝與調試方法
電機振(zhen)動輸送機具有結構簡(jian)單、重量輕、噪音低(di)、工作可靠、無(wu)粉塵(chen)污(wu)染、安裝維護方便(bian)等優點(dian)。廣泛應用于冶金、礦山、煤炭、建(jian)材、化工、糧食、玻璃、陶瓷等行業。想(xiang)要了解更多關(guan)于振(zhen)動輸送機的資訊,請關(guan)注永恒振(zhen)動機械公司網站://bwwlpsg.cn/
熱銷產品
-
DZSF直線振動篩
DZSF系(xi)列直線(xian)振(zhen)動(dong)篩(shai)是(shi)由篩(shai)箱、篩(shai)框、振(zhen)動(dong)電機(ji)、減振(zhen)系(xi)統及座架等組成。直線(xian)振(zhen)動(dong)篩(shai)是(shi)用(yong)振(zhen)動(dong)電機(ji)作(zuo)為振(zhen)動(dong)源,固定(ding)在篩(shai)箱上兩(liang)臺相同的振(zhen)動(dong)電機(ji)做(zuo)相反方向自同步旋(xuan)轉,振(zhen)動(dong)電機(ji)所帶的偏心(xin)塊(kuai)在旋(xuan)轉時(shi)各個瞬間位置所產(chan)生的離(li)心(xin)力之分力沿拋(pao)擲方向作(zuo)往復運動(dong)
立即了解?DZSF直線振動篩
-
CZ系列倉壁振動器
CZ系列倉(cang)壁振動器(qi)(振打器(qi))可用于清除(chu)各種(zhong)倉(cang)壁、管道(dao)粘結物料(liao),防止(zhi)和排(pai)除(chu)各種(zhong)料(liao)倉(cang)由于物料(liao)的內磨擦(ca)、潮解、帶電、成份(fen)偏析等原(yuan)因(yin)引起的堵(du)塞、搭拱現象。
立即了解?CZ系列倉壁振動器
-
ZG系列慣性振動器
ZG系(xi)列(lie)慣性(xing)振(zhen)動(dong)器可(ke)直接用(yong)于作為倉壁振(zhen)動(dong)器且(qie)慣性(xing)振(zhen)動(dong)器使用(yong)方(fang)便、結構簡單是利用(yong)裝在特制的(de)雙(shuang)出軸三相(xiang)異步電機轉子兩端的(de)偏心塊提(ti)供振(zhen)動(dong)力的(de)一種(zhong)新型振(zhen)動(dong)驅(qu)動(dong)裝置。
立即了解?ZG系列慣性振動器
-
GZ系列電磁振動給料機
GZ系列電磁(ci)振動給料(liao)(liao)機(ji)在(zai)生產流程中,用于把(ba)塊狀(zhuang)、顆粒狀(zhuang)、粉狀(zhuang)物料(liao)(liao)從(cong)貯(zhu)料(liao)(liao)倉(cang)或漏斗中定量(liang)、均勻、連續(xu)地(di)給到受料(liao)(liao)裝置中去。
立即了解?GZ系列電磁振動給料機