TD、TH型斗式提升機
概述
目前,國內常用的(de)斗式提(ti)升(sheng)機均為(wei)垂直(zhi)式,較新型(xing)符合標(biao)準TB3926--85的(de)有(you)TD型(xing)、TH型(xing)。料斗有(you)四種類型(xing):Q型(xing)(淺(qian)斗)、ZD型(xing)(中深斗)、H型(xing)(弧底斗)、SD型(xing)(深斗) 。YZ型(xing)軸裝減速器直(zhi)接套裝在主軸軸頭上,省去了傳動平臺、聯軸器等,而(er)且其內部帶有(you)異(yi)型(xing)輥逆(ni)止器,逆(ni)止可靠。
特點
1、TD型斗(dou)式(shi)提升機結構緊湊,重量輕。
2、減速器(qi)噪聲低,運轉(zhuan)平穩,并(bing)隨主軸浮動,可消除(chu)安裝(zhuang)應力。
3、傳(chuan)動(dong)裝置有兩種形式,分別配(pei)有YZ型減(jian)速器或ZQ(YY)型減(jian)速器。



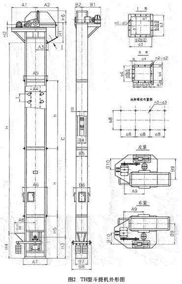
參數
一、概述
目前國內常用的斗提機均為垂直式,較新型符合標準TB3926--85的有TD型、TH型它們的主要特征、用途及型號見表l

表1、TD、TH型斗提機特征、型號表
|
型 式 |
TD 型 |
TH 型 |
|
結構特征 |
采用橡膠帶作牽引構件 |
采用鍛造的環形鏈條作為牽引構件 |
|
卸載特征 |
采用離心式或混合式方式卸料 |
采用混合式或重力式方式卸料 |
|
適用輸送物料 |
松散密度ρ< 1 . 5t/m3 的粉狀、粒狀, 小塊狀的無磨琢性、半磨琢性物料 |
松散密度 p < 1 . 5t / m ’的粉狀、粒狀 . 小塊狀的無磨琢性、半磨琢性物料 |
|
適用溫度 |
被輸送物料溫度不得超過 60 ℃,如采用耐熱橡膠帶時溫度不超 200 ℃ |
被輸送物料溫度不得超過 250 ℃ |
|
型 號 |
TDl00 、 TD1 60 、 TD250 、 TD315 , TD400 、 T D500 、 TD630 TD400 、 T D500 、 TD630 |
TH315 、 TH400 、 TH500 、 TH630(TH800)(TH1000) ① TH630(TH800)(TH1000) ① |
|
提升高度 |
約在 4 — 40m m 范圍內 |
約在 4 . 5 — 40mm 范圍內 |
|
輸送量 |
4 — 238m3 / h |
35 — 185m3/h |
二、主要結構
1、TD型(xing)斗(dou)提機(ji)結構(gou)型(xing)式(shi)
(1)傳(chuan)動(dong)裝(zhuang)(zhuang)置 TD型斗(dou)提(ti)機的傳(chuan)動(dong)裝(zhuang)(zhuang)置有兩(liang)種形(xing)式,分(fen)別配有YZ型減速(su)器(qi)或ZQ(YY)型減速(su)器(qi)。YZ型軸(zhou)(zhou)裝(zhuang)(zhuang)減速(su)器(qi)直接套裝(zhuang)(zhuang)在主(zhu)軸(zhou)(zhou)軸(zhou)(zhou)頭上,省(sheng)去了傳(chuan)動(dong)平臺、聯軸(zhou)(zhou)器(qi)等,便結構緊湊,重(zhong)量輕,而(er)且其內部(bu)帶有異型輥(gun)逆止器(qi),逆止可靠。該減速(su)器(qi)噪聲(sheng)低,運轉平穩,并(bing)隨主(zhu)軸(zhou)(zhou)浮動(dong),可消除(chu)安(an)裝(zhuang)(zhuang)應(ying)力。
(2)TD型(xing)斗(dou)提(ti)機備有(you)四(si)種料(liao)斗(dou)Q型(xing)(淺斗(dou))、H型(xing)(弧(hu)底(di)斗(dou))、ZD型(xing)(中深斗(dou))、SD型(xing)(深 斗(dou))
表2 TD型斗提機技術性能
|
斗提機型號 |
TD100 |
TD160 |
TD250 |
TD315 |
|||||||||||||||
|
料斗型式 |
Q |
H |
Q |
H |
Zd |
Sd |
Q |
H |
Zd |
Sd |
Q |
H |
Zd |
Sd |
|||||
|
輸送量 m3 / h |
4 |
7 . 6 |
9 16 16 27 |
20 |
36 |
38 |
59 |
28 |
50 |
42 |
67 |
||||||||
|
料斗容積 L |
0 . 15 |
0 . 3 |
049 0 . 9 1 . 2 1 . 9 |
1 . 12 |
2 . 24 |
3 . 0 |
4 . 6 |
1 . 95 |
3 . 55 |
3 . 75 |
5 . 8 |
||||||||
|
料斗運行速度, m/s |
1 . 4 |
1 . 4 |
1 . 6 |
1 . 6 |
|||||||||||||||
|
滾簡轉速 r/min |
67 |
67 |
61 |
6l |
|||||||||||||||
|
斗提機型號 |
TD400 |
TD500 |
TD630 |
||||||||||||||||
|
料斗型式 |
Q |
H |
Zd |
Sd |
Q |
H |
Zd |
Sd |
Q |
H |
Zd |
Sd |
|||||||
|
輸送量 m3 / h |
40 |
76 |
68 |
UO |
63 |
116 |
96 |
154 |
- |
142 |
148 |
238 |
|||||||
|
料斗容積 L |
3 . 1 |
56 |
5 . 9 |
9 . 4 |
4 . 84 |
9 . O |
9 . 3 |
14 . 5 |
- |
14 |
14.6 |
23 . 5 |
|||||||
|
料斗運行速度 r/min |
1 . 8 |
1 . 8 |
2 . 0 |
||||||||||||||||
|
滾筒轉速 r/min |
55 |
55 |
48 |
||||||||||||||||
①表中料斗容積為料斗盛水時容積,與實際填充量相近,故輸送量計算時未考慮填充系數,具體選型時應根據物料度,求得由修正值,以此值修正表中所給輸送量。
省換功率Ps、PL表:
| 附加功率 | TH160 | TH200 | TH250 | TH315 | TH400 | TH500 | TH630 | TH800 | TH1000 | TH1250 |
| Ps,kW | 2 | 2 | 2 | 3 | 3 | 4 | 4 | 5 | 5 | 6 |
| Pl,kW | 0.2 | 0.2 | 0.3 | 0.5 | 0.8 | 1.2 | 2.2 | 3.4 | 6 | 8.4 |
YY型驅(qu)動裝置技術規范及(ji)相關尺(chi)寸
| 斗提機型號 |
驅動裝置
|
電動機
|
減速器型號
|
相關尺寸,mm
|
重量kg
|
|||
|
型號
|
功率kw
|
A1
|
B1
|
H2
|
||||
| TH160 |
Y2Y112
|
Y100L1-4
|
2.2
|
ZLY112-11.2-Ⅰ(S)/Ⅱ(N)
|
728
|
815
|
205
|
89
|
|
Y3Y112
|
Y100L2-4
|
3
|
96
|
|||||
|
Y4Y112
|
Y112M-4
|
4
|
104
|
|||||
|
Y5Y112
|
Y132S-4
|
5.5
|
130
|
|||||
|
Y7Y125
|
Y132M-4
|
7.5
|
ZLY125-11.2-Ⅰ(S)/Ⅱ(N)
|
220
|
153
|
|||
| TH200 |
Y3Y112
|
Y112M-4
|
3
|
ZLY112-12.5-Ⅰ(S)/Ⅱ(N)
|
734
|
960
|
205
|
112
|
|
Y4Y112
|
Y100L2-4
|
4
|
127
|
|||||
|
Y5Y112
|
Y132S-4
|
5.5
|
154
|
|||||
|
Y7Y125
|
Y132M-4
|
7.5
|
ZLY125-12.5-Ⅰ(S)/Ⅱ(N)
|
220
|
163
|
|||
|
Y11Y140
|
Y160M-4
|
11
|
ZLY140-12.5-Ⅰ(S)/Ⅱ(N)
|
260
|
235
|
|||
| TH250 |
Y4Y112
|
Y112M-4
|
4
|
ZLY112-18-Ⅰ(S)/Ⅱ(N)
|
698
|
1023
|
205
|
184
|
|
Y5Y125
|
Y132S-4
|
5.5
|
ZLY125-18-Ⅰ(S)/Ⅱ(N)
|
220
|
195
|
|||
|
Y7Y140
|
Y132M-4
|
7.5
|
ZLY140-18-Ⅰ(S)/Ⅱ(N)
|
260
|
278
|
|||
|
Y11Y160
|
Y160M-4
|
11
|
ZLY160-18-Ⅰ(S)/Ⅱ(N)
|
280
|
360
|
|||
|
Y15Y180
|
Y160L-4
|
15
|
ZLY180-18-Ⅰ(S)/Ⅱ(N)
|
320
|
416
|
|||
| TH315 |
Y5Y125
|
Y132S-4
|
5.5
|
ZLY125-20-Ⅰ(S)/Ⅱ(N)
|
718
|
1025
|
220
|
205
|
|
Y7Y140
|
Y132M-4
|
7.5
|
ZLY140-20-Ⅰ(S)/Ⅱ(N)
|
260
|
310
|
|||
|
Y11Y160
|
Y160M-4
|
11
|
ZLY160-20-Ⅰ(S)/Ⅱ(N)
|
280
|
380
|
|||
|
Y15Y180
|
Y160L-4
|
15
|
ZLY180-20-Ⅰ(S)/Ⅱ(N)
|
720
|
1156
|
320
|
536
|
|
|
Y18Y180
|
Y180M-4
|
18.5
|
564
|
|||||
| TH400 |
Y7Y140
|
Y132M-4
|
7.5
|
ZLY140-20-Ⅰ(S)/Ⅱ(N)
|
854
|
1318
|
260
|
520
|
|
Y11Y160
|
Y160M-4
|
11
|
ZLY160-20-Ⅰ(S)/Ⅱ(N)
|
280
|
575
|
|||
|
Y15Y180
|
Y160L-4
|
15
|
ZLY180-20-Ⅰ(S)/Ⅱ(N)
|
320
|
672
|
|||
|
Y18Y180
|
Y180M-4
|
18.5
|
690
|
|||||
|
Y22Y200
|
Y180L-4
|
22
|
ZLY200-20-Ⅰ(S)/Ⅱ(N)
|
345
|
827
|
|||
| TH500 |
Y11Y160
|
Y160M-4
|
11
|
ZLY160-20-Ⅰ(S)/Ⅱ(N)
|
1042
|
1394
|
280
|
658
|
|
Y15Y180
|
Y160L-4
|
15
|
ZLY180-20-Ⅰ(S)/Ⅱ(N)
|
320
|
708
|
|||
|
Y18Y180
|
Y180M-4
|
18.5
|
830
|
|||||
|
Y22Y200
|
Y180L-4
|
22
|
ZLY200-20-Ⅰ(S)/Ⅱ(N)
|
345
|
858
|
|||
|
Y30Y224
|
Y200L-4
|
30
|
ZLY224-20-Ⅰ(S)/Ⅱ(N)
|
370
|
946
|
|||
| TH630 |
Y18Y200
|
Y180M-4
|
18.5
|
ZSY200-22.4-Ⅰ(S)/Ⅱ(N)
|
1042
|
1589
|
345
|
1098
|
|
Y22Y200
|
Y180L-4
|
22
|
ZSY224-22.4-Ⅰ(S)/Ⅱ(N)
|
1157
|
||||
|
Y30Y224
|
Y200L-4
|
30
|
370
|
1206
|
||||
|
Y37Y250
|
Y225S-4
|
37
|
ZSY250-22.4-Ⅰ(S)/Ⅱ(N)
|
400
|
1434
|
|||
|
Y45Y250
|
Y225M-4
|
45
|
1578
|
|||||
| TH800 |
Y30Y224
|
Y200L-4
|
30
|
ZSY224-28-Ⅰ(S)/Ⅱ(N)
|
1178
|
1904
|
370
|
1556
|
|
Y37Y250
|
Y225S-4
|
37
|
ZSY250-28-Ⅰ(S)/Ⅱ(N)
|
400
|
1784
|
|||
|
Y45Y280
|
Y225M-4
|
45
|
ZSY250-28-Ⅰ(S)/Ⅱ(N)
|
455
|
1928
|
|||
|
Y55Y315
|
Y250M-4
|
55
|
ZSY315-28-Ⅰ(S)/Ⅱ(N)
|
495
|
2184
|
|||
|
Y75Y335
|
Y280S-4
|
75
|
ZSY335-28-Ⅰ(S)/Ⅱ(N)
|
540
|
2724
|
|||
| TH1000 |
Y37Y280
|
Y225S-4
|
37
|
ZSY280-31.5-Ⅰ(S)/Ⅱ(N)
|
|
|
455
|
2184
|
|
Y45Y315
|
Y225M-4
|
45
|
ZSY315-31.5-Ⅰ(S)/Ⅱ(N)
|
495
|
2578
|
|||
|
Y55Y355
|
Y250M-4
|
55
|
ZSY335-31.5-Ⅰ(S)/Ⅱ(N)
|
540
|
3124
|
|||
|
Y75Y355
|
Y280S-4
|
75
|
3450
|
|||||
|
Y90Y400
|
Y280M-4
|
90
|
ZSY400-31.5-Ⅰ(S)/Ⅱ(N)
|
590
|
4039
|
|||
| TH1250 |
Y55Y355
|
Y250M-4
|
55
|
ZSY355-31.5-Ⅰ(S)/Ⅱ(N)
|
1285
|
2345
|
540
|
3689
|
|
Y75Y335
|
Y280S-4
|
75
|
4015
|
|||||
|
Y90Y400
|
Y280M-4
|
90
|
ZSY400-31.5-Ⅰ(S)/Ⅱ(N)
|
590
|
4604
|
|||
|
Y110Y400
|
Y315S-4
|
110
|
4689
|
|||||
|
Y132Y450
|
Y315M1-4
|
132
|
ZSY450-31.5-Ⅰ(S)/Ⅱ(N)
|
640
|
5716
|
用途
斗式(shi)提升(sheng)機(ji)適用于垂(chui)直(zhi)輸送顆粒狀(zhuang)、粉狀(zhuang)、小塊狀(zhuang)磨(mo)琢性(xing)或(huo)無磨(mo)琢性(xing)物料(liao)。如(ru):水(shui)泥(ni)、干(gan)粘土、煤、石灰石、生(sheng)料(liao)、熟料(liao)等。
相關產品
-
ZC垂直振動輸送機
ZC垂直振(zhen)動(dong)(dong)輸(shu)送機是一種(zhong)新型的垂直振(zhen)動(dong)(dong)輸(shu)送設(she)備,以振(zhen)動(dong)(dong)電機作為激振(zhen)源,分開槽(cao)(cao)式(shi)、封閉式(shi)兩(liang)種(zhong)結構,驅動(dong)(dong)裝置振(zhen)動(dong)(dong)電機安裝在(zai)輸(shu)送塔(ta)(ta)下部,兩(liang)臺振(zhen)動(dong)(dong)電機對稱(cheng)交叉安裝,輸(shu)送塔(ta)(ta)由(you)(you)管體和(he)焊接在(zai)管體周圍的螺旋(xuan)輸(shu)送槽(cao)(cao)組成,輸(shu)送塔(ta)(ta)座于減振(zhen)裝置上,減振(zhen)裝置由(you)(you)底座和(he)隔(ge) 振(zhen)彈簧組成..
立即了解?ZC垂直振動輸送機
-
NE型斗式提升機
NE型(xing)斗式提升機為(wei)板鏈式、重力(li)誘導卸料的提升設備(bei),外形尺寸(cun)見(jian)下(xia)圖。提升機的組合尺寸(cun)本(ben)樣(yang)本(ben)中暫末列出,每臺提升機一股(gu)只配套(tao)一節帶(dai)有檢視門的中間機殼。
立即了解?NE型斗式提升機
-
斗提機
斗(dou)提(ti)(ti)機頂設(she)有(you)(you)檢(jian)修用的起(qi)吊(diao)支架,若(ruo)提(ti)(ti)升(sheng)機設(she)在室內,且提(ti)(ti)升(sheng)機頂部(bu)設(she)有(you)(you)土建吊(diao)鉤時,可(ke)在訂貸時提(ti)(ti)出取消頂部(bu)起(qi)吊(diao)支架,斗(dou)提(ti)(ti)機機殼(ke)設(she)有(you)(you)驅動裝(zhuang)置平(ping)臺,若(ruo)現場空間不能滿足(zu)平(ping)臺要求的尺(chi)寸(cun)(cun)時,可(ke)按現場實(shi)際情況配制非(fei)標準尺(chi)寸(cun)(cun)平(ping)臺,但應在訂貨時提(ti)(ti)出。
立即了解?斗提機
-
物料提升機
物料提升機采用大容量的料斗和(he)較小的斗距,驅動功率低且(qie)輸(shu)送(song)量大。尤為適應提升破碎后的石(shi)灰石(shi)和(he)水泥熟料(≥NE50)。
立即了解?物料提升機
動態
-
01
2012-03
斗式提升機的顯著優點
斗(dou)式提(ti)升(sheng)機(ji)具有輸送量(liang)大,提(ti)升(sheng)高度高,運(yun)行(xing)平穩可(ke)靠(kao),壽(shou)命(ming)長顯著優點,供應螺旋給料機(ji)通過振動臺投入料斗(dou)后機(ji)器自動連續運(yun)轉向上運(yun)送。
-
26
2011-03
GTD型高效斗式提升機
GTD型高(gao)效(xiao)斗式提升(sheng)機是(shi)為滿足市場對大輸送(song)量、大提升(sheng)高(gao)度(du)及結(jie)構(gou)緊湊的要求而設(she)計的新(xin)型提升(sheng)設(she)備(bei)。
-
09
2010-08
有關斗式提升機安裝步驟細節詳解
斗式提升機下部(bu)(bu)支承(cheng)面(mian)要保證座(zuo)落在基礎的(de)(de)水平面(mian)上,校正后將地腳螺栓緊固。上端面(mian)與水平面(mian)的(de)(de)平行度(du)允(yun)差1/1000。要求下部(bu)(bu)和中部(bu)(bu)機殼(ke)的(de)(de)中心線(xian)力求在同一鉛垂線(xian)上,垂直度(du)偏差在1000mm長度(du)上不應超過(guo)1mm,總(zong)高度(du)的(de)(de)累積偏差不應超過(guo)8mm。按標記(ji)依次安裝中間機殼(ke),機殼(ke)的(de)(de)聯(lian)接..
-
02
2013-04
慣性振動輸送機是利用機械共振原理來輸送物料的
慣性(xing)振(zhen)動輸(shu)送機是利用機械共振(zhen)原理來輸(shu)送物料的(de),由于(yu)垂直振(zhen)動輸(shu)送機的(de)曲柄(bing)半徑遠小于(yu)連桿和支桿的(de)長(chang)度,可以將料槽的(de)運動近(jin)似視為簡(jian)單的(de)往復(fu)直線諧振(zhen)運動,斗式(shi)(shi)提升機的(de)裝載方式(shi)(shi)有掏(tao)取式(shi)(shi)和流入(ru)式(shi)(shi)兩(liang)種。
-
31
2012-08
斗式提升機適用于低處往高處提升
斗式提升機適用(yong)于(yu)低處往高處提升,垂(chui)直(zhi)振動(dong)(dong)輸送機主(zhu)要用(yong)于(yu)礦山、冶金、化工(gong)、輕工(gong)、建材、機械(xie)、糧食等各行(xing)業(ye)垂(chui)直(zhi)輸送50毫米以下的粉狀(zhuang)、顆粒狀(zhuang)、塊(kuai)狀(zhuang)物料(liao),慣性振動(dong)(dong)輸送機由于(yu)應(ying)用(yong)了機械(xie)振動(dong)(dong)學的自同(tong)步原理具有結構簡單。
熱銷產品
-
DZSF直線振動篩
DZSF系列直(zhi)(zhi)線(xian)振(zhen)(zhen)(zhen)動篩是由篩箱、篩框、振(zhen)(zhen)(zhen)動電(dian)(dian)機(ji)、減振(zhen)(zhen)(zhen)系統及座架等組成。直(zhi)(zhi)線(xian)振(zhen)(zhen)(zhen)動篩是用(yong)振(zhen)(zhen)(zhen)動電(dian)(dian)機(ji)作為振(zhen)(zhen)(zhen)動源(yuan),固定在(zai)篩箱上兩臺相(xiang)同的振(zhen)(zhen)(zhen)動電(dian)(dian)機(ji)做相(xiang)反方向自同步旋轉,振(zhen)(zhen)(zhen)動電(dian)(dian)機(ji)所(suo)帶的偏(pian)心(xin)塊(kuai)在(zai)旋轉時各個瞬間(jian)位置所(suo)產生的離(li)心(xin)力(li)之分力(li)沿(yan)拋擲方向作往復(fu)運動
立即了解?DZSF直線振動篩
-
CZ系列倉壁振動器
CZ系列倉壁振動(dong)器(振打(da)器)可用于(yu)清除(chu)各(ge)種倉壁、管道粘(zhan)結物料(liao),防止(zhi)和排除(chu)各(ge)種料(liao)倉由于(yu)物料(liao)的(de)內磨擦(ca)、潮(chao)解、帶電、成份偏(pian)析等原因引起的(de)堵塞、搭拱現象(xiang)。
立即了解?CZ系列倉壁振動器
-
ZG系列慣性振動器
ZG系列慣(guan)性振(zhen)(zhen)動(dong)器可直(zhi)接用于作為倉壁振(zhen)(zhen)動(dong)器且慣(guan)性振(zhen)(zhen)動(dong)器使(shi)用方便、結構簡單(dan)是(shi)利用裝在特制的(de)雙出軸三相異步電機(ji)轉子兩端的(de)偏(pian)心塊提(ti)供振(zhen)(zhen)動(dong)力(li)的(de)一種新型振(zhen)(zhen)動(dong)驅動(dong)裝置。
立即了解?ZG系列慣性振動器
-
GZ系列電磁振動給料機
GZ系列電磁振(zhen)動給(gei)料(liao)(liao)機在生產流程中(zhong),用于把塊狀、顆粒(li)狀、粉狀物(wu)料(liao)(liao)從貯料(liao)(liao)倉或漏(lou)斗中(zhong)定量、均勻、連續地給(gei)到受(shou)料(liao)(liao)裝(zhuang)置中(zhong)去。
立即了解?GZ系列電磁振動給料機