空氣輸送斜槽
概述
空氣(qi)輸送斜(xie)槽是一種新型透氣(qi)型,它(ta)具有耐高溫(可(ke)達150℃),耐腐蝕、耐磨損、吸濕性低、重量輕、表(biao)面(mian)平整、使用壽(shou)命長(chang)等優點。
特點
空氣輸送斜槽在輸送物料中沒有轉動部件,易(yi)于(yu)維護,密封性好,無噪音,操作安全可靠(kao),耗電少,改變輸送方(fang)向方(fang)便,并能多(duo)點喂料和多(duo)點卸(xie)料而得到廣泛的應用。

參數
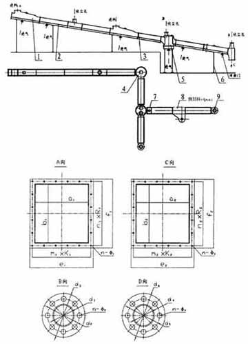
| 規格 | XZ200 | XZ250 | XZ315 | XZ400 | XZ500 | XZ630 | XZ800 | |||
| 槽體寬度 | m m | 200 | 250 | 315 | 400 | 500 | 630 | 800 | ||
| 輸 送 能 力 | a=4° | 水泥 | T/h | 22 | 40 | 70 | 130 | 220 | 320 | 400 |
| 生料 | 16 | 30 | 55 | 100 | 165 | 245 | 310 | |||
| a=6° | 水泥 | 40 | 65 | 120 | 250 | 400 | 610 | 765 | ||
| 生料 | 30 | 55 | 90 | 185 | 300 | 455 | 565 | |||
| a=8° | 水泥 | 50 | 80 | 140 | 300 | 470 | 720 | 900 | ||
| 生料 | 35 | 65 | 110 | 225 | 355 | 540 | 670 | |||
| a=10° | 水泥 | 60 | 100 | 170 | 380 | 570 | 900 | 1080 | ||
| 生料 | 45 | 80 | 140 | 285 | 425 | 670 | 800 | |||
| a=12° | 水泥 | 70 | 120 | 205 | 455 | 685 | 1080 | 1295 | ||
| 生料 | 50 | 95 | 165 | 340 | 510 | 805 | 960 | |||
| 槽體節長 | 標準節 | m m | 2000 | |||||||
| 非標準節 | m m | 250 | ||||||||
| 需要風壓 | KPa | 4-5.5 | ||||||||
| 需要風量 | m3/m2.min | 1.5-2 | ||||||||
| 透 氣 層 | 材質 | 合成纖維 | ||||||||
| 厚度 | m m | 4-6 | ||||||||
| 耐溫 | ℃ | 150 | ||||||||
| 徑向斷裂強度 | N/cm寬 | 4700 | ||||||||
| 阻力 | Pa | 800-1200(在2m3/m2.min條件下) | ||||||||
|
代號 |
a1 | b1 | e1 | f1 | m1×R1 | n1×R1 | n-Φ1 | |||||||
| 型號 | Ⅰ型 | Ⅱ型 | Ⅰ型 | Ⅱ型 | Ⅰ型 | Ⅱ型 | Ⅰ型 | Ⅱ型 | Ⅰ型 | Ⅱ型 | Ⅰ型 | Ⅱ型 | Ⅰ型 | Ⅱ型 |
| XZ200 | 120 | 200 | 120 | 150 | 210 | 280 | 210 | 230 | 2×86 | 4×63 | 2×86 | 3×66 | 8-Φ14.5 | 14-Φ12 |
| XZ250 | 150 | 250 | 150 | 200 | 240 | 330 | 240 | 280 | 3×70 | 4×70 | 3×70 | 3×83 | 12-Φ14.5 | 14-Φ12 |
| XZ315 | 150 | 250 | 150 | 250 | 240 | 330 | 240 | 330 | 3×70 | 4×75 | 3×70 | 4×75 | 12-Φ14.5 | 16-Φ12 |
| XZ400 | 150 | 315 | 150 | 315 | 240 | 395 | 240 | 395 | 3×70 | 5×73 | 3×70 | 5×73 | 12-Φ14.5 | 20-Φ12 |
| XZ500 | 200 | 400 | 200 | 400 | 290 | 480 | 290 | 480 | 3×88 | 6×75 | 3×88 | 6×75 | 12-Φ14.5 | 24-Φ12 |
| XZ630 | 200 | 500 | 200 | 500 | 290 | 580 | 290 | 580 | 3×88 | 7×79 | 3×88 | 7×79 | 12-Φ14.5 | 28-Φ12 |
用途
空氣(qi)輸送斜(xie)槽主要構件是透氣(qi)層,采用PETS-6(滌(di)綸)型合成纖維織物,一種用于輸送干燥(zao)粉狀物料(liao)的氣(qi)力(li)輸送設備,在水(shui)泥工(gong)業(ye)中常用于輸送水(shui)泥和生料(liao)粉。
相關產品
動態
-
19
2025-03
空氣輸送斜槽在操作使用時的注意點
空(kong)氣(qi)輸(shu)送斜槽屬于密相流(liu)態化輸(shu)送,動力消耗少,生產費用低,在粉狀物料的(de)水平輸(shu)送中,應用較廣泛。
-
22
2022-02
空氣輸送斜槽有什么作用,一講都知道
由(you)于空氣輸(shu)送(song)斜(xie)槽(cao)在(zai)輸(shu)送(song)物料的過程中沒有運(yun)動的零件(jian),所以(yi)與同功率的膠(jiao)帶輸(shu)送(song)機、螺旋輸(shu)送(song)機、刮板輸(shu)送(song)機相(xiang)比,具有磨損少、易維護、耗電(dian)少、用(yong)材(cai)省、無噪(zao)音、密閉好、構造簡單、操作(zuo)安全可(ke)靠
-
24
2020-09
空氣輸送斜槽的操作注意點講解
輸(shu)送(song)(song)(song)斜槽(cao)(cao)是一種廣泛地應用于(yu)輸(shu)送(song)(song)(song)干燥粉狀物料的(de)氣力輸(shu)送(song)(song)(song)設備,在水泥工業中(zhong)(zhong)常用于(yu)輸(shu)送(song)(song)(song)水泥和生(sheng)料粉。由于(yu)空(kong)氣輸(shu)送(song)(song)(song)斜槽(cao)(cao)在輸(shu)送(song)(song)(song)物料的(de)過程(cheng)中(zhong)(zhong)沒有(you)運動的(de)零件,所以與(yu)同功率的(de)膠帶輸(shu)送(song)(song)(song)機(ji)(ji)、螺旋輸(shu)送(song)(song)(song)機(ji)(ji)、刮板輸(shu)送(song)(song)(song)機(ji)(ji)相(xiang)比,具有(you)磨損少(shao)、易(yi)維護、耗電少(shao)、用材省、無(wu)噪(zao)音、密閉..
-
12
2018-03
淺談關于空氣輸送斜槽的優勢及其動力原理
空氣(qi)輸(shu)送斜槽是(shi)一種(zhong)廣泛地應用于輸(shu)送干燥粉狀(zhuang)物料的氣(qi)力輸(shu)送設(she)備,在水(shui)泥工業中常用于輸(shu)送水(shui)泥和生料粉。更(geng)多資訊,請關(guan)注公司網(wang)站://bwwlpsg.cn/
-
14
2014-07
談談空氣輸送斜槽的工作原理
空氣斜槽(cao)是用于水平輸(shu)(shu)送(song)(song)干(gan)燥(zao)粉狀(zhuang)物料的(de)設備(bei)。 空氣輸(shu)(shu)送(song)(song)斜槽(cao)是利(li)用氣流的(de)動能使散粒物料呈懸(xuan)浮(fu)狀(zhuang)態隨氣流沿管道輸(shu)(shu)送(song)(song)的(de)裝置。有吸送(song)(song)式、壓(ya)送(song)(song)式和(he)混(hun)合式三種輸(shu)(shu)送(song)(song)形式。 圓振篩(shai)具有結(jie)構(gou)可靠、激振力強(qiang)、篩(shai)分效率高、振動噪音(yin)小。
熱銷產品
-
DZSF直線振動篩
DZSF系列(lie)直(zhi)線振(zhen)動(dong)篩(shai)是由篩(shai)箱(xiang)(xiang)、篩(shai)框、振(zhen)動(dong)電機、減振(zhen)系統及座(zuo)架等(deng)組成。直(zhi)線振(zhen)動(dong)篩(shai)是用振(zhen)動(dong)電機作(zuo)為(wei)振(zhen)動(dong)源,固定(ding)在篩(shai)箱(xiang)(xiang)上(shang)兩臺相同(tong)的(de)振(zhen)動(dong)電機做相反(fan)方向(xiang)自同(tong)步旋轉,振(zhen)動(dong)電機所帶的(de)偏心塊在旋轉時各個瞬(shun)間(jian)位置(zhi)所產生的(de)離心力之分(fen)力沿拋擲方向(xiang)作(zuo)往復運動(dong)
立即了解?DZSF直線振動篩
-
CZ系列倉壁振動器
CZ系(xi)列倉(cang)壁(bi)振動器(振打器)可用于(yu)清除各種(zhong)倉(cang)壁(bi)、管道粘結(jie)物(wu)料,防止和排除各種(zhong)料倉(cang)由于(yu)物(wu)料的(de)(de)內磨擦(ca)、潮(chao)解、帶電(dian)、成份偏(pian)析等原(yuan)因引(yin)起的(de)(de)堵塞、搭拱現象。
立即了解?CZ系列倉壁振動器
-
ZG系列慣性振動器
ZG系列慣性(xing)振動(dong)(dong)器可直(zhi)接用(yong)于(yu)作為倉壁振動(dong)(dong)器且(qie)慣性(xing)振動(dong)(dong)器使用(yong)方便、結構簡單是(shi)利(li)用(yong)裝在特制的(de)雙出軸(zhou)三(san)相(xiang)異步(bu)電機轉子兩(liang)端的(de)偏(pian)心(xin)塊提供振動(dong)(dong)力(li)的(de)一種新型振動(dong)(dong)驅(qu)動(dong)(dong)裝置。
立即了解?ZG系列慣性振動器
-
GZ系列電磁振動給料機
GZ系列電磁振動(dong)給料機在生產流程中,用于把塊狀(zhuang)、顆粒狀(zhuang)、粉(fen)狀(zhuang)物(wu)料從貯料倉或漏(lou)斗中定量、均勻、連續(xu)地(di)給到(dao)受料裝置(zhi)中去。
立即了解?GZ系列電磁振動給料機