寬槽型振動給煤機
概述
寬槽(cao)型振動給(gei)(gei)煤(mei)(mei)(mei)(mei)機(ji)(ji)(ji)是(shi)選(xuan)煤(mei)(mei)(mei)(mei)廠振動篩或跳汰機(ji)(ji)(ji)前給(gei)(gei)料的(de)一種(zhong)節能型給(gei)(gei)煤(mei)(mei)(mei)(mei)機(ji)(ji)(ji),寬槽(cao)型振動給(gei)(gei)煤(mei)(mei)(mei)(mei)機(ji)(ji)(ji)由新型振動電機(ji)(ji)(ji)直接驅動、結構簡單緊湊(cou)、便于窄小空間布置安裝;給(gei)(gei)煤(mei)(mei)(mei)(mei)連續均(jun)勻,配用電控箱,可(ke)實現給(gei)(gei)煤(mei)(mei)(mei)(mei)量的(de)任意調節。
特點
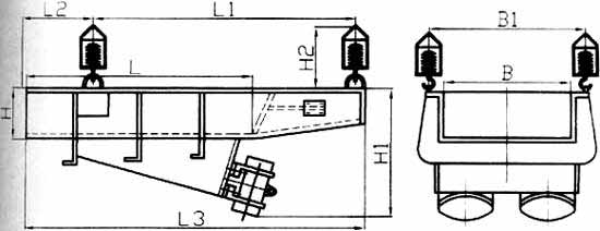
寬槽型振動給煤機外形尺寸圖

參數
| 型號參數 | GZGKM-120 | GZGKM-160 | GZGKM-180 | GZGKM-200 | GZGKM-220 | GZGKM-280 | GZGKM-320 |
| 給料機寬度(mm) | 1200 | 1600 | 1800 | 2000 | 2200 | 2800 | 2300 |
| 給料粒度(mm) | 0-120 | 0-120 | 0-120 | 0-120 | 0-120 | 0-120 | 0-120 |
| 給料量(t/h) | 100-150 | 100-175 | 100-200 | 15-225 | 150-250 | 200-300 | 200-350 |
| 功率(kw) | 2×1.50 | 2×1.50 | 2×2.20 | 2×2.20 | 2×2.20 | 2×3.70 | 2×3.70 |
| 電機型號 | YZO-20-6 | YZO-20-6 | YZO-30-6 | YZO-30-6 | YZO-30-6 | YZO-50-6 | YZO-50-6 |
| 振頻(Hz) | 16 | 16 | 16 | 16 | 16 | 16 | 16 |
| 振幅(mm) | 4-6 | 4-6 | 4-6 | 4-6 | 4-6 | 4-6 | 4-6 |
| 安裝傾角 | 0°-10° | 0°-10° | 0°-10° | 0°-10° | 0°-10° | 0°-10° | 0°-10° |
| 總重(kg) | 800 | 920 | 1200 | 1370 | 1480 | 1800 | 1970 |
用途
寬槽型振動給煤機廣泛應用于煤炭、冶金、建材、化工、輕工等行業的篩前給料或者有布料要求的工藝中。
相關產品
-
ZG系列電磁振動給煤機
ZG系(xi)列(lie)電磁振動給煤機(ji)可(ke)以(yi)將煤炭或其它散狀物料(liao)從料(liao)倉(cang)或漏斗(dou)中(zhong)均勻連續或定量地給到受料(liao)設備(bei)中(zhong)去(如帶(dai)式輸送機(ji),斗(dou)式提(ti)升(sheng)機(ji),篩分設備(bei),破碎機(ji)等(deng))。
立即了解?ZG系列電磁振動給煤機
-
GZGM-K型慣性振動給煤機
GZGM-K型慣性(xing)振動給煤(mei)機(ji)(ji)是K型往(wang)復式給煤(mei)機(ji)(ji)的替代產品。該機(ji)(ji)型結構緊湊(cou),工(gong)作噪音小,安裝方便,且無需改動即可更換(huan)原有的K型往(wang)復式給煤(mei)機(ji)(ji)。
立即了解?GZGM-K型慣性振動給煤機
-
葉輪給煤機
葉(xie)輪給煤機(ji)(ji)(ji)是火(huo)力(li)發電廠儲倉式制粉(fen)系統供(gong)給鍋爐燃料的主要設備,用(yong)葉(xie)輪給煤機(ji)(ji)(ji)把煤粉(fen)連(lian)續,均(jun)勻地送入一次風管,吹進鍋爐燃燒。靠葉(xie)輪給煤機(ji)(ji)(ji)調節給粉(fen)量來(lai)控制鍋爐溫度和(he)壓力(li),從而保證要求(qiu)的鍋爐出力(li)。
立即了解?葉輪給煤機
-
K型往復式給煤機
K型給(gei)煤(mei)機(ji)(ji)由機(ji)(ji)架、底板(給(gei)煤(mei)槽)、傳動平(ping)臺、漏斗(dou)、閘門(men)、托輥等組成,當電機(ji)(ji)啟動后,經(jing)彈性聯軸器(qi)、減(jian)速(su)機(ji)(ji)、曲(qu)柄連桿機(ji)(ji)構拖動傾斜5度的底板在輥上作直(zhi)線往(wang)復運動,煤(mei)均(jun)勻地卸(xie)到其他設備上。
立即了解?K型往復式給煤機
-
刮板給煤機
刮板(ban)給(gei)(gei)煤(mei)(mei)機(ji)在(zai)水平輸送時物(wu)料(liao)(liao)受到刮板(ban)鏈條在(zai)運動方(fang)向的(de)壓(ya)力及(ji)物(wu)料(liao)(liao)自(zi)身重量的(de)作用(yong),刮板(ban)給(gei)(gei)煤(mei)(mei)機(ji)在(zai)物(wu)料(liao)(liao)間產生(sheng)了內摩(mo)(mo)擦力,刮板(ban)給(gei)(gei)煤(mei)(mei)機(ji)的(de)摩(mo)(mo)擦力保證了料(liao)(liao)層之間的(de)穩定狀態(tai),并足(zu)以克服物(wu)料(liao)(liao)在(zai)機(ji)槽中(zhong)移(yi)動而產生(sheng)的(de)外摩(mo)(mo)擦力,使物(wu)料(liao)(liao)形成連(lian)續整體的(de)料(liao)(liao)流而被輸送。
立即了解?刮板給煤機
-
振動式給煤機
振動(dong)式給(gei)煤機(ji)配(pei)備自(zi)動(dong)穩幅控(kong)制箱,可不受電(dian)(dian)源電(dian)(dian)壓的波動(dong),而(er)使機(ji)器(qi)振幅穩定(ding),配(pei)備電(dian)(dian)源控(kong)制箱,可以無級調(diao)節給(gei)料量,且噪(zao)音(yin)降低(di),壽命延(yan)長(chang),可靠性(xing)提高,同時還(huan)可以與計算機(ji)實(shi)現聯機(ji),實(shi)現自(zi)動(dong)化智能給(gei)料。
立即了解?振動式給煤機
-
振動給煤機
振動(dong)給煤機配(pei)備自(zi)(zi)動(dong)穩幅控制箱,可(ke)不受電(dian)源電(dian)壓的波(bo)動(dong),而使(shi)機器振幅穩定,配(pei)備電(dian)源控制箱,可(ke)以(yi)無(wu)級調節給料量,且(qie)噪音降(jiang)低,壽命延長,可(ke)靠性提(ti)高,同時還可(ke)以(yi)與計算機實現(xian)聯機,實現(xian)自(zi)(zi)動(dong)化智能給料。
立即了解?振動給煤機
-
埋刮板給煤機
埋刮板(ban)(ban)給(gei)(gei)煤機(ji)在(zai)(zai)物料(liao)(liao)(liao)(liao)間(jian)產生了內摩擦力(li),埋刮板(ban)(ban)給(gei)(gei)煤機(ji)在(zai)(zai)水平輸送時物料(liao)(liao)(liao)(liao)受到刮板(ban)(ban)鏈條(tiao)在(zai)(zai)運動方向的(de)壓力(li)及物料(liao)(liao)(liao)(liao)自(zi)身重量(liang)的(de)作(zuo)用(yong),埋刮板(ban)(ban)給(gei)(gei)煤機(ji)的(de)摩擦力(li)保(bao)證了料(liao)(liao)(liao)(liao)層之間(jian)的(de)穩定(ding)狀態,并足以(yi)克服物料(liao)(liao)(liao)(liao)在(zai)(zai)機(ji)槽中移動而產生的(de)外(wai)摩擦力(li),使物料(liao)(liao)(liao)(liao)形成(cheng)連續整體的(de)料(liao)(liao)(liao)(liao)流而被輸送。
立即了解?埋刮板給煤機
動態
-
16
2022-09
振動給煤機,知道怎樣安全操作嗎?
振(zhen)動(dong)給煤(mei)機一般用(yong)于把原(yuan)煤(mei)及粉煤(mei)從貯料(liao)倉均勻或(huo)定量給到受料(liao)設備中,具有(you)起動(dong)迅速,停車平(ping)穩(wen),維修少,安裝(zhuang)方(fang)便,結構簡單等特(te)點。
-
06
2020-07
慣性振動給煤機的日常維護檢修是怎樣的呢
慣性(xing)(xing)振動給煤(mei)機(ji)由機(ji)架、底板(給煤(mei)槽)、傳動平臺、漏斗、閘門、托輥等(deng)組成。當(dang)電機(ji)開動后經彈性(xing)(xing)聯(lian)軸器、減速(su)機(ji)、曲柄連桿機(ji)構(gou)拖(tuo)動傾料5°的底板在輥上(shang)作直線往復(fu)運動,煤(mei)均勻地(di)卸到其他設備上(shang)。
-
29
2012-04
斗式提升機的工作原理
TH系(xi)列(lie)斗式提(ti)(ti)升(sheng)(sheng)機(ji)適(shi)(shi)用于(yu)輸(shu)送(song)(song)粉狀(zhuang)(zhuang)(zhuang)(zhuang)、粒狀(zhuang)(zhuang)(zhuang)(zhuang)及小塊(kuai)狀(zhuang)(zhuang)(zhuang)(zhuang)的(de)無磨琢及磨琢性小的(de)物(wu)料。TH型是一種圓(yuan)環鏈斗式提(ti)(ti)升(sheng)(sheng)機(ji)采用混合(he)式或重力卸料,挖取式裝料。牽引件用優質合(he)金鋼(gang)高(gao)度圓(yuan)環鏈。中.. 板(ban)式輸(shu)送(song)(song)機(ji) 電磁振動(dong)給煤機(ji) 埋刮板(ban)輸(shu)送(song)(song)機(ji) TH系(xi)列(lie)斗式提(ti)(ti)升(sheng)(sheng)機(ji)適(shi)(shi)用于(yu)輸(shu)送(song)(song)粉狀(zhuang)(zhuang)(zhuang)(zhuang)、粒狀(zhuang)(zhuang)(zhuang)(zhuang)及小塊(kuai)狀(zhuang)(zhuang)(zhuang)(zhuang)..
-
29
2012-04
刮板輸送機的安裝和使用
一、刮(gua)板(ban)輸(shu)(shu)送機(ji)的安(an)裝 刮(gua)板(ban)輸(shu)(shu)送機(ji)的安(an)裝需要(yao)進行以下工(gong)作(zuo):1)定位(wei) 定出(chu)機(ji)頭(tou)和機(ji)尾的位(wei)置,然后再(zai)定出(chu)刮(gua)板(ban)輸(shu)(shu)送機(ji)的中心線。2)鋪設中間槽.. 熱礦振(zhen)(zhen)動篩(shai) 一、刮(gua)板(ban)輸(shu)(shu)送機(ji)的安(an)板(ban)式給料機(ji)裝&n氣動弧門卸料器bsp; 刮(gua)板(ban)輸(shu)(shu)送機(ji)的安(an)裝需要(yao)進行以下工(gong)作(zuo):1)電磁振(zhen)(zhen)動給煤機(ji)定位(wei) ..
-
18
2012-04
擋邊皮帶輸送機的工作原理
波紋(wen)擋邊(bian)(bian)式(shi)輸(shu)(shu)送(song)機(ji)(ji)又名邊(bian)(bian)帶(dai)(dai)式(shi)輸(shu)(shu)送(song)機(ji)(ji),它是在(zai)平面輸(shu)(shu)送(song)帶(dai)(dai)上(shang)硫(liu)化一(yi)格(ge)格(ge)的隔(ge)板并與兩邊(bian)(bian)能收(shou)縮的波紋(wen)狀擋邊(bian)(bian)練成一(yi)體(ti),其斷面有如斗(dou)形,該機(ji)(ji)英文為(wei)FLexowell,意為(wei)柔性斗(dou)。當在(zai)轉(zhuan)彎滾筒上(shang)轉(zhuan)角時.. 慣性振動給(gei)料斗(dou)電磁振動給(gei)煤機(ji)(ji) 波紋(wen)擋邊(bian)(bian)式(shi)輸(shu)(shu)送(song)機(ji)(ji)又名邊(bian)(bian)帶(dai)(dai)式(shi)輸(shu)(shu)活化給(gei)煤機(ji)(ji)送(song)機(ji)(ji),它..
熱銷產品
-
DZSF直線振動篩
DZSF系列直線振(zhen)動(dong)(dong)篩(shai)是(shi)由篩(shai)箱、篩(shai)框、振(zhen)動(dong)(dong)電(dian)機(ji)、減振(zhen)系統及(ji)座架(jia)等(deng)組成。直線振(zhen)動(dong)(dong)篩(shai)是(shi)用振(zhen)動(dong)(dong)電(dian)機(ji)作為振(zhen)動(dong)(dong)源,固定在(zai)篩(shai)箱上兩臺相同的(de)振(zhen)動(dong)(dong)電(dian)機(ji)做(zuo)相反(fan)方(fang)向自同步(bu)旋(xuan)轉,振(zhen)動(dong)(dong)電(dian)機(ji)所(suo)帶的(de)偏心塊在(zai)旋(xuan)轉時各個(ge)瞬間位置(zhi)所(suo)產生的(de)離心力(li)(li)之分力(li)(li)沿拋擲方(fang)向作往復運(yun)動(dong)(dong)
立即了解?DZSF直線振動篩
-
CZ系列倉壁振動器
CZ系(xi)列倉(cang)壁振動(dong)器(振打器)可(ke)用于(yu)清(qing)除(chu)各(ge)(ge)種倉(cang)壁、管(guan)道粘(zhan)結物料,防止和排除(chu)各(ge)(ge)種料倉(cang)由于(yu)物料的內磨擦(ca)、潮解、帶電、成份偏析等(deng)原因引起的堵塞、搭拱現象。
立即了解?CZ系列倉壁振動器
-
ZG系列慣性振動器
ZG系列慣性振動(dong)器(qi)可(ke)直接用于作為(wei)倉壁振動(dong)器(qi)且慣性振動(dong)器(qi)使用方便、結構簡單是利用裝(zhuang)在特制的(de)雙出軸三相異步電機轉子(zi)兩端(duan)的(de)偏心(xin)塊(kuai)提(ti)供(gong)振動(dong)力的(de)一(yi)種新型(xing)振動(dong)驅動(dong)裝(zhuang)置。
立即了解?ZG系列慣性振動器
-
GZ系列電磁振動給料機
GZ系列電(dian)磁(ci)振動給料(liao)(liao)(liao)機在生產流程中,用于把塊狀(zhuang)(zhuang)、顆粒狀(zhuang)(zhuang)、粉狀(zhuang)(zhuang)物料(liao)(liao)(liao)從貯料(liao)(liao)(liao)倉或漏斗中定(ding)量、均勻(yun)、連續地給到(dao)受料(liao)(liao)(liao)裝置中去。
立即了解?GZ系列電磁振動給料機